
Studio Projects.
During my first year in the studio, we focused on learning the basics of programs such as while simultaneously doing hands-on projects to hone in our skills as designers. However, during my second year and onward, we started to work solely with computer programs such as Revit, AutoCAD, and Rhino to create our designs.
Live + Work + Home
The whole idea behind this project is to design a spec that encompasses a craft-space to work in and a home together. The craftsperson I chose to work with was a Resin Table Maker because I thought that it posed interestingly unique issues to deal with rather than a normal furniture-maker. Scroll through to see my final presentation of my project.
Miller House
This was the final project for a class that was centered around Revit and AutoCAD. These are all renderings that I made and are also edited in Adobe Photoshop. This is a replicated building of The Miller House in Columbus, IN. These are renderings of the from walkway, the master bedroom, and the kitchen. This project was a huge project that we worked on gradually over the course of the semester. I learned the most during the rendering phase because I finally was able to see what I had been working so hard on.
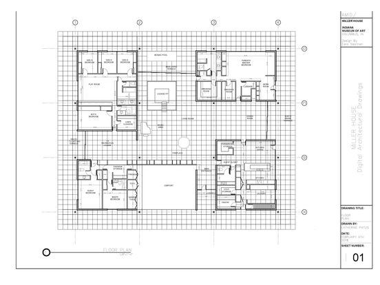
Architectural Drawings
These architectural drawings are also based on The Miller House in Columbus, IN. These drawings were the first part of The Miller House project and were also done in Revit and AutoCAD beforehand. During this part of project I learned the pros and cons between Revit and AutoCAD because we made the documents in both programs.
Hermitage Designs
This house was created for one person to live in solitude away from the stress of everyday life. The focus of my design was that my client wanted to be surrounded and immersed in nature. The house has a garden on top and large windows that are placed to compliment the inside walls for a better immersive feeling to the outside world.
Stair Elevations and Sections
I used AutoCAD to create these different views of the stairs. I learned different regulations that are in place when you build stairs. These are exercises that I did in class to practice creating different types of stairs in different views. The examples include straight run, L-shaped, and U-shaped stairs and their subsequent sections and elevations.
Room Layouts
I continued to use AutoCAD to create layouts of bedrooms, bathrooms, living rooms, dining rooms, and kitchens. Some of those rooms also required special regulations such as needing to be ADA compliant. This is when I learned different ADA codes when creating the ADA bathroom and bedroom.







































